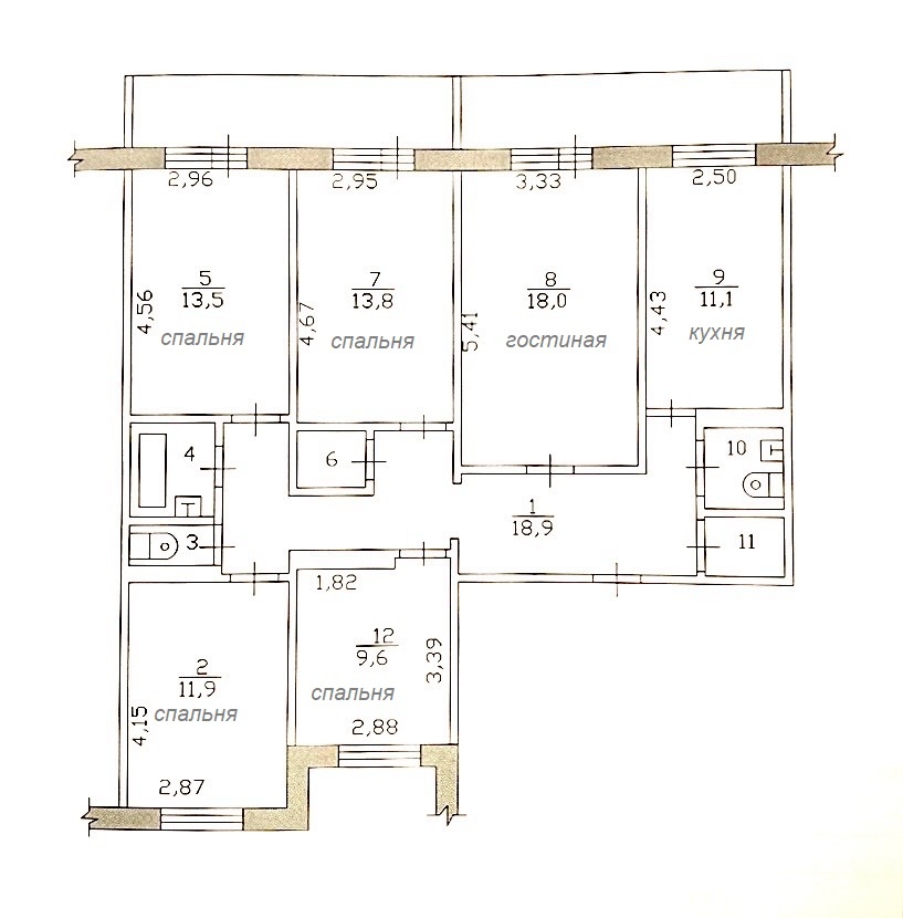
Продаётся просторная пятикомнатная квартира в доме 43/17 (ул. Шамиля Усманова, 60) площадью 113.7 кв.м., первый этаже девятиэтажного панельного дома.

Жилая площадь составляет 66.8 кв.м., а площадь кухни — 11.1 кв.м. В квартире выполнен частичный косметический ремонт, что позволит новым владельцам сразу заселиться без дополнительных вложений.

Квартира имеет два балкона, откуда открывается вид на двор и улицу. Внутри также имеется более одного санузла для удобства большой семьи или гостей.

Расположение дома предоставляет отличные возможности для активного отдыха и занятий спортом благодаря наличию детской и спортивной площадок прямо во дворе. Также рядом находятся школы, гимназии 76 и 78, детские сады, торговый центр, парк и фитнес-центр, поликлиники, остановки общественного транспорта, администрация города, что делает эту локацию идеальной для семей с детьми и тех, кто ценит комфорт и удобство.

Этот вариант жилья отлично подойдёт тем, кто ищет просторную и уютную квартиру в спокойном районе с развитой инфраструктурой.
Ссылка на объявление: https://prospekt16.ru/sale/saleapartments/162373
7 650 000
Садыков Ильдар Ильдусович


Татарстан республика, Набережные Челны, улица Шамиля Усманова, д 60 redeemДанный объект можно приобрести в ипотеку

Информация об объекте

Количество комнат5-к квартира Этаж1 Площадь113.7 Жилая площадь66.8 Площадь кухни11.1 Площадь комнат11,9+13,5+13,8+18,0+9,6 Лоджия2 Раздельных санузлов1 Совмещенных санузлов1 ОкнаДвор + улица РемонтКосметический

Информация о доме

Год постройки1983 Тип домаПанельный Этажей в доме9 Лифты пассажирские1 МусоропроводЕсть ПандусЕсть ПарковкаНаземная