Продаётся уютная трёхкомнатная квартира площадью 75.9 квадратных метров в живописном районе города Набережные Челны, расположенная по адресу: Новый Город м-н, 11-й комплекс, 17 / проспект Мира, 35.

Это прекрасное предложение для тех, кто ценит комфорт и удобство. Квартира расположена на 5 этаже панельного дома, построенного в 1977 году. Дом имеет 16 этажей и окружён развитой инфраструктурой: рядом находятся школа, детский сад, торговый центр и фитнес-центр. Также во дворе установлена детская площадка, что делает это место идеальным для семей с детьми.

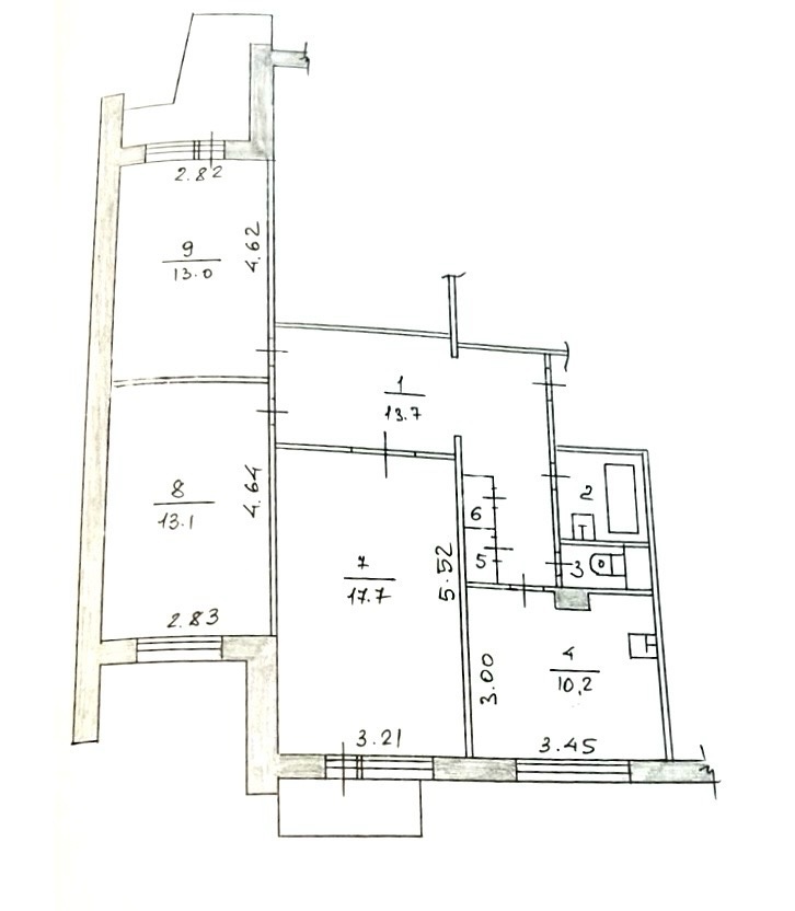
Внутри квартиры вас ждёт светлая и просторная гостиная, три спальни, раздельный санузел и две лоджии, откуда открывается вид как на тихий двор, так и на оживленную улицу. Кухня оборудована всем необходимым и имеет площадь 10.2 квадратных метра, что позволяет разместить всё необходимое оборудование и мебель.

Жилая площадь составляет 43.8 квадратных метра, что предоставляет достаточно места для комфортного проживания всей семьи. В квартире выполнен косметический ремонт, благодаря чему она готова к заселению без дополнительных вложений.

Помимо этого, рядом с домом расположены различные объекты инфраструктуры, такие как парикмахерские, салоны красоты, кафе и рестораны, а также продуктовые магазины. Это значительно упрощает повседневные задачи и делает жизнь более комфортной.

Приобретая эту квартиру, вы получаете не только жильё своей мечты, но и возможность наслаждаться спокойной жизнью в одном из самых зелёных районов города. Не упустите свой шанс стать владельцем этой замечательной квартиры!
Ссылка на объявление: https://prospekt16.ru/sale/saleapartments/169633
8 500 000
Садыков Ильдар Ильдусович


Татарстан республика, Набережные Челны, проспект Мира, д 35 redeemДанный объект можно приобрести в ипотеку

Информация об объекте

Количество комнат3-к квартира Этаж5 Площадь75.9 Жилая площадь43.8 Площадь кухни10.2 Площадь комнат17,7+13,1+13 Лоджия1 Балкон1 Раздельных санузлов1 ОкнаДвор + улица РемонтКосметический

Информация о доме

Год постройки1976 Тип домаПанельный Этажей в доме16 Лифты грузовые1 Лифты пассажирские1 МусоропроводЕсть ПандусЕсть ПарковкаНаземная