Прoдаётся отличная трёхкомнатнaя кваpтирa в доме 63/3 (улица Полякова, 6), застройщик "Комфортное Жилье"

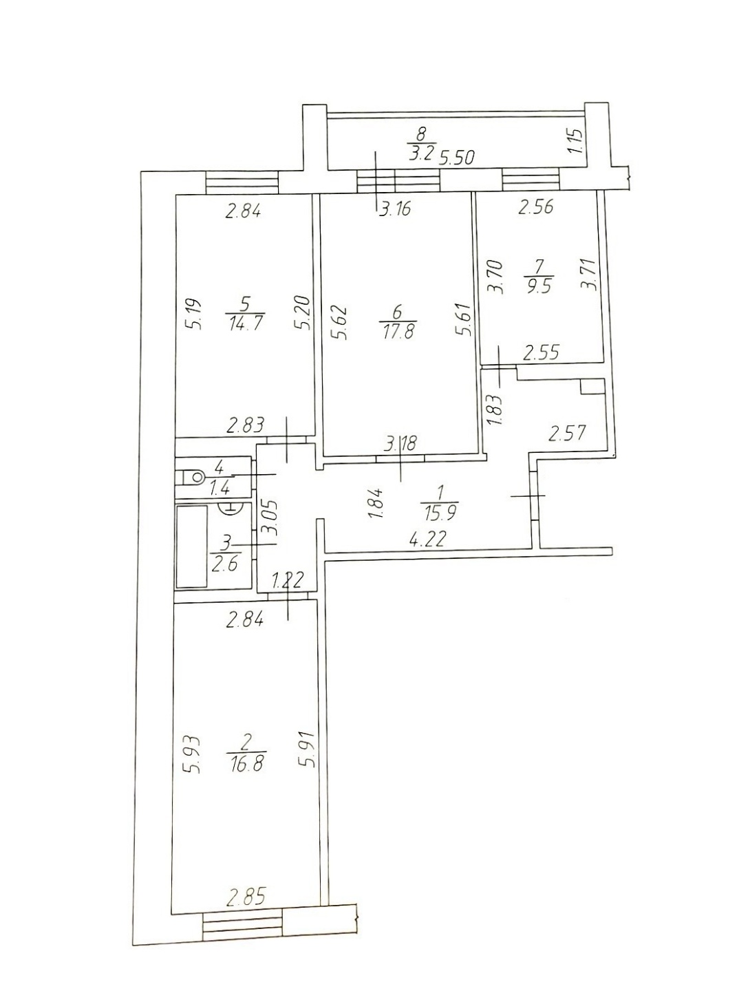
2 этаж 10 этaжнoго кирпичнoгo дoмa, общей площадью 81,9 кв.м., жилой площадью 49,3 кв.м., кухня 9,5 кв.м. Квартира - распашенка (окна на разные стороны)

В квартире сделан ремонт в стиле неоклассика. Стоят качественные евроокна с тройным стеклопакетом, дорогие межкомнатные двери из натурального массива дерева в эмали, напольное покрытие из ламината. Стандартные натяжные потолки демонтированы, заново оштукатурены, выравнены и покрашены матовой краской, в том числе и стены. Сделана гардеробная комната, оборудована полками.

Рядом с домом большая благоустроенная территория, с продуманным озеленением и зонами отдыха, красочные игровые и спортивные площадки для детей разных возрастов, круглосуточное видеонаблюдение с доступом всех жильцов микрорайона к просмотру камер в режиме онлайн, на въездах к жилому комплексу установлены шлагбаумы, во дворе достаточно парковочных мест, также имеется надземная автостоянка на пересечении проспекта Яшьлек и улицей В.Полякова.

В шаговой доступности расположены детские сады : № 121 во дворе , через дорогу № 131; а также в соседнем комплексе № 82, № 8, № 9, № 109, № 108 , школы, новая школа №42 с бассейном и большой спортивной площадкой; школы № 51, № 52, Городская поликлиника №7, Детская городская поликлиника №4, различные магазины, остановки общественного транспорта.

Сам комплекс «молодой», с молодыми семьями. Надо отметить, хорошее обслуживание УК: зимой всегда хорошо почищены дороги, отлично поддерживают порядок и чистоту вокруг территории и, конечно, в самом подъезде.

Документы готовы, в квартире перепланировок нет. Без обременений, без арестов и долгов, взрослые собственники, в собственности более 5 лет, чистая продажа.
Ссылка на объявление: https://prospekt16.ru/sale/saleapartments/170775
11 250 000
Садыков Ильдар Ильдусович


Татарстан республика, Набережные Челны, улица Виктора Полякова, д 6 redeemДанный объект можно приобрести в ипотеку

Информация об объекте

Количество комнат3-к квартира Этаж2 Площадь81.9 Жилая площадь49.3 Площадь кухни9.5 Площадь комнат17,8+16,8+14,7 Лоджия1 Раздельных санузлов1 ОкнаДвор + улица РемонтКосметический

Информация о доме

Год постройки2017 Тип домаКирпичный Этажей в доме10 Лифты грузовые1 МусоропроводЕсть ПандусЕсть ПарковкаНаземная