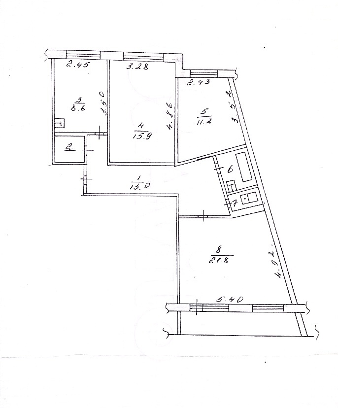
Продаётся уютная трехкомнатная квартира площадью 76.2 кв.м. в доме 17/01 (проспект Хасана Туфана, дом 22/9), расположенную на втором этаже двенадцатиэтажного панельного дома, Развитая инфраструктура: школы, детские сады, торговый центр Палитра, Апельсин, магазины, остановки общественного транспорта.

Квартира обладает жилой площадью 48.9 кв.м. и кухней размером 8.6 кв.м., что создает комфортные условия для жизни семьи. Выполнен косметический ремонт, благодаря чему новым владельцам не потребуется дополнительных вложений сразу после покупки. Раздельный санузел добавляет удобства в повседневное использование пространства.

Для маленьких жителей комплекса во дворе оборудованы детская и спортивная площадки, где дети могут безопасно играть и заниматься спортом. Приобретая эту квартиру, вы выбираете комфортное и безопасное место для жизни своей семьи.
Ссылка на объявление: https://prospekt16.ru/sale/saleapartments/172245
7 990 000
Садыков Ильдар Ильдусович


Татарстан республика, Набережные Челны, проспект Хасана Туфана, д 22/9
redeemДанный объект можно приобрести в ипотеку

Информация об объекте

Количество комнат3-к квартира Этаж2 Площадь76.2 Жилая площадь48.9 Площадь кухни8.6 Лоджия1 Раздельных санузлов1 ОкнаДвор + улица РемонтКосметический

Информация о доме

Год постройки1988 Тип домаПанельный Этажей в доме12 Лифты грузовые1 Лифты пассажирские1 МусоропроводЕсть ПандусЕсть ПарковкаНаземная