Стоимость указана за дом в предчистовой отделке с земельным участком!

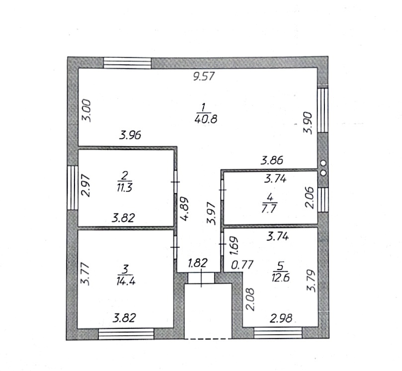
Продается дом площадью 90 кв.м. (кухня-гостиная, три спальни, санузел) в поселке Старые Ерыклы, ДНП "Солнечное", участок 7,7 соток. Расстояние от города около 5 км, все коммуникации газ, скважина, септик.
В поселке есть вся необходимая инфраструктура магазины, детский сад, есть школа в соседнем поселке (организован транспорт для детей).

Подходит по семейной и айти ипотекам
Ссылка на объявление: https://prospekt16.ru/sale/salehouse/47111
8 850 000
Садыков Ильдар Ильдусович


Татарстан республика, Тукаевский район, территория днп Солнечное
redeemДанный объект можно приобрести в ипотеку

Информация об объекте

Вид объектаДом Тип продажиСвободная продажа Площадь участка7.7 Площадь дома90 Материал стенКирпичный Год постройки2025 Количество этажей1 Количество спален3 СанузелВ доме ОтоплениеЦентральное газовое ГазЕсть ВодоснабжениеЕсть КанализацияЕсть ЭлектричествоЕсть